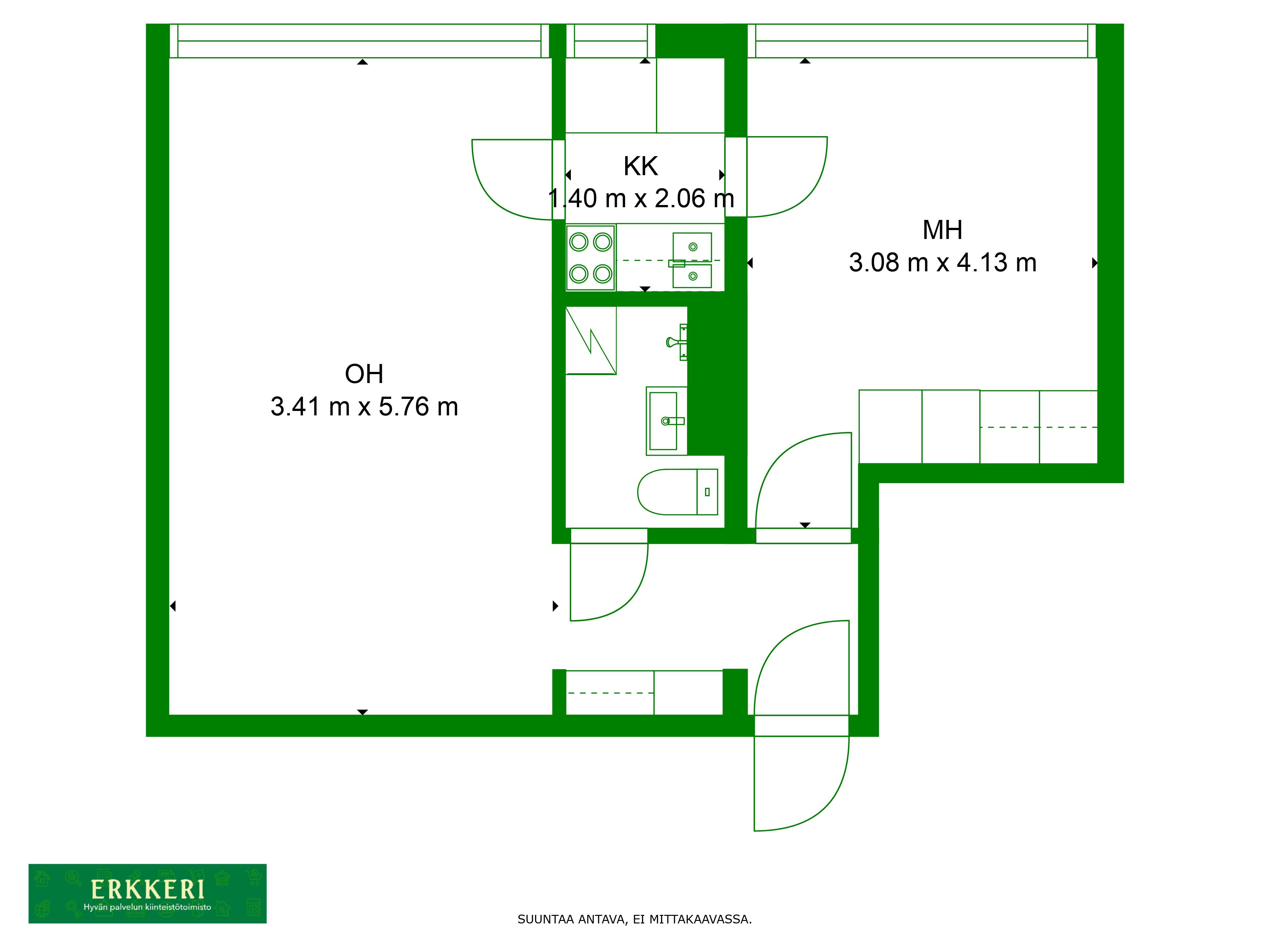
Erinomainen mahdollisuus asumiseen tai sijoitukseen huippusijainnilla! Tämä hyvin suunniteltu koti tarjoaa tehokkaan pohjaratkaisun, jossa jokainen neliö on käytetty fiksusti hyödyksi. Tilava olohuone luo kodikkaan tunnelman ja tarjoaa monipuoliset kalustusmahdollisuudet. Kompakti keittokomero vastaa arjen tarpeisiin, ja makuuhuone on riittävän kokoinen mukavaan lepoon.
Kylpyhuone on täysin uusittu vuonna 2018 putkiremontin yhteydessä – tyylikäs ja ajanmukainen ilme sekä käytännöllisyys takaavat helpon arjen.
Asunto sijaitsee rauhallisella ja vehreällä alueella meren tuntumassa, arvostetussa Katajaharjussa. Koivusaaren metroasema on kävelyetäisyydellä, joten liikenneyhteydet ovat erinomaiset.
Taloyhtiössä on tehty kaikki merkittävät peruskorjaukset – edessä on huoletonta asumista vuosiksi eteenpäin!
Erkkeri, perustettu 1995, on Lauttasaaren kokenein asuntokauppias. Kun harkitset kodinvaihtoa, hyödynnä osaamisemme.
Merellinen Lauttasaari on yksi idyllisimmistä asuinalueista Helsingissä. Viihtyvyys on taattua, sillä täältä löytyy kaikki mitä tarvita saattaa. Runsaasti vehreitä ulkoilualueita, uimarantoja, rantaravintoloita ja satamia, hyviä kouluja ja päiväkoteja, monipuolisia palveluita sekä hyvät julkiset kulkuyhteydet. Keskustasta saaren turvalliseen ympäristöön on matkaa vain sillan verran. Ei siis ihme, että alue on ollut yksi Helsingin suosituimmista jo kauan aikaa.
Alueen tiedot
Ulkoilureitit lähellä, puisto lähellä, koirapuisto, urheilukenttä



















