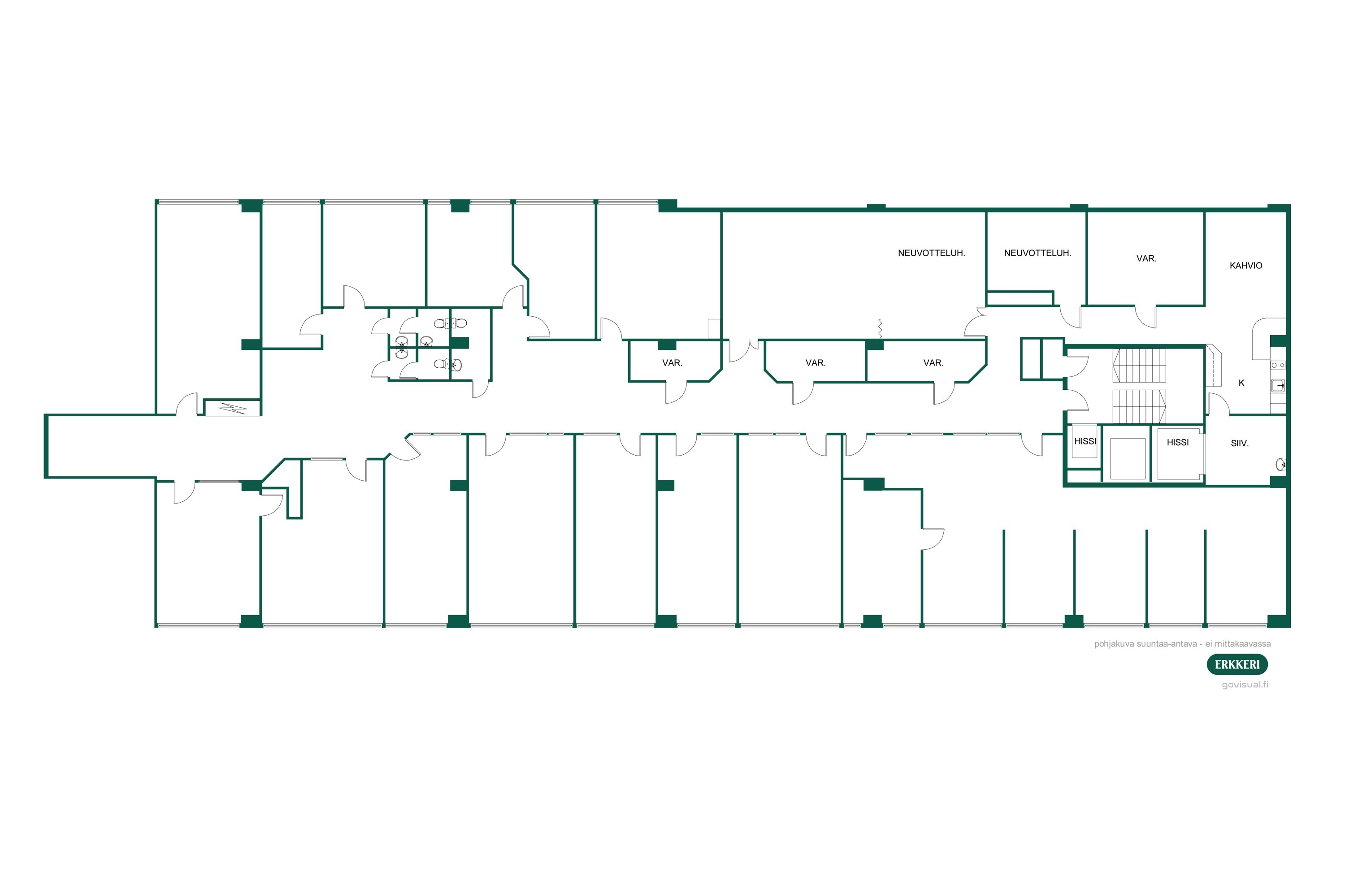
Tarjolla toimiva toimistotila Mikonkadulla Aikatalossa, 3. kerroksessa.
Tämä 641,5 m2 tila soveltuu erinomaisesti yritykselle, joka tarvitsee viihtyisän ja helposti saavutettavan työskentelytilan.
Tilassa on 18 huonetta, joista 15 huonetta on varustettu vesipisteellä. Varastoja on 5 ja wc-tiloja 5 sekä pukuhuone.
Toimistotila tarjoaa riittävästi tilaa päivittäisille toiminnoille ja mahdollisuuden luoda inspiroiva työympäristö.
Sijainti Mikonkadulla on erinomainen, sillä alueella on hyvät liikenneyhteydet ja palvelut lähellä, mikä tekee arjesta sujuvaa.
Tila vapautuu 1.12.2025.
Ota yhteyttä, niin sovitaan esittelyaika tai annetaan lisätietoja tästä toimistotilasta!
Mikonkatu 8, Helsinki
Mikonkatu 8, Helsinki
15 000,00 €/kk
641,5 m2
Rakennusvuosi
1959Kerros
3Rakennustyyppi
Liikekiinteistö
Samuli Partanen
Vuokravälittäjä, LVV
Perustiedot
| Sijainti | Mikonkatu 8 K |
|---|---|
| Kohde on | Toimitila |
| Kohdenumero | 1226 |
| Kokonaispinta-ala | 642 m² |
| Huoneiston kokoonpano | Toimisto |
| Kunto | Erinomainen |
| Vapautuminen | 01.12.2025 |
| Kerros | 3 |
| Hissi | Kyllä |
| Parveke | Ei |
| Asunnossa on sauna | Ei |
| Tietoliikennepalvelut | Kohde on liitetty tietoliikenneverkkoon |
Vuokraustiedot
| Kuukausivuokra | 15 000 €/kk |
|---|---|
| Vakuus | 2 kuukauden vuokraa vastaava |
| Vuokrankorotusperuste | Elinkustannusindeksi |
| Vuokra-aika | Toistaiseksi voimassa oleva |
| Jälleenvuokraus | Ei sallittu |
| Lemmikkieläimet | Ei sallittu |
| Tupakointi | Ei sallittu |
Muut maksut
| Sähkösopimus | Vuokralainen solmii oman sopimuksen energialaitoksen kanssa |
|---|---|
| Vuokralaisen vastuu kotivakuutuksesta | Laaja |
Talon ja tontin tiedot
| Uudiskohde | Ei |
|---|---|
| Taloyhtiön nimi | AIKATALO OY |
| Rakennuksen tyyppi | COMMERCIAL |
| Rakennusvuosi | 1959 |
| Hissi | Kyllä |
| Kiinteistönhoito | Huoltoyhtiö |
| Isännöinti | Suomen Kiinteistöyhtymä Oy |
| Lämmitysjärjestelmä | Kaukolämpö |
| Tehdyt remontit | – pohjaviemäreiden uusiminen 2001 – tuulikaappien rakentaminen Aikapihaan johtaviin käytäviin (4 kpl) 2000-2001 – Aikatalo ja Aikapiha-valomainosten asentaminen Mikonkadulta ja Ateneuminkujalta Aikapihaan johtavien sisäänkäyntien päälle 2001 – Kulunvalvontajärjestelmän uusiminen ja laajentaminen 2003 – Sade- ja jätevesipumppaamon uusiminen 2004 – Kaasuliittymän hankinta 2004 – A-portaan hissien (4 kpl) peruskorjaus 2005 – Vesi- ja viemäriliittymien tonttijohtojen uusiminen 2005 – Autohallin kunnostus 2006 – Muuntamon korjaus 2006 – Liukuportaan uusiminen 2006 – C-portaan hissin peruskorjaus 2008 – sähköpääkeskuksen ja sähkönmittausjärjestelmän uusiminen 2009 – ilmanvaihtojärjestelmän puhdistus ja säätö 2010 – terassin rakentaminen Ateneuminkujalle 2010 – muuntamon ja sähköpääkeskuksen jäähdytyksen uusiminen 2011 – ravintoloiden ilmanvaihdon kehittämisen hankesuunnittelu 2011 – teatterihuoneiston vesikaton uusiminen 2012 – ulko-ovien (4 kpl) muuttaminen automaattisiksi 2012 – hissiaulan kattoverhousten uusiminen 2012 – videovalvontalaitteiston laajennus ja uusien kameroiden asennus 2012 – lukituksen uusinta iLoq 2020 – ateneuminkujan asfaltointi 2020 – hissien uusinta 2021-2022 |
| Tulevat remontit | LVI-laitteet tarvittavat päivitykset (sisältyy energiaremonttiin) 2025 IV-konehuone (sisältyy energiaremonttiin) 2025 lämmönjakohuone 2028 sähköpääkeskus/muuntamo 2026 rakennusautomaation uusinta (sisältyy energiaremonttiin) 2025 sähkö- ja tietojärjestelmä 2026 ilmanvaihtokanavien puhdistus ja ilmamäärien säätö (sisältyy energiaremonttiin) 2025 TATE/Energiaremontti 2025 kellari ja varastotilat maalaus 2026 lukituksen mahdollinen päivitys 2027 1.kerroksen alakattojen, valaisimien sekä opastusten/teippausten uusiminen 2025 lämmitysjärjestelmä tarkastus 2025 IV-laitteet ja venttiilit 2025 päävesimittari tarkastus 2025 Vesi ja viemärilaitteet tarkastusperustusten tarkastus parkkihallissa 2025(halli) jäteasema huolto, sekajätepuristimen uusinta 2025 pihavalot 2025 pysäköintihalli pinnoitus 2025- salojien toimivuus jatkuva sadevesikaivojen tarkastus jatkuva sadevesien vedenohjaus 2025 pihakourut 2025 jätevesikaivot 2025 |






